For Sale 3 Bed House - End Terrace 

Windmill Lane, Greenford £510,000

Property Features

Location:
Windmill Lane, Greenford, UB6 9DS
Reception Rooms: 1
Bedrooms: 3
Bathrooms: 1

Contact Agent

Greenford
55 The Broadway
Greenford
Middlesex
UB6 9PN
Tel: 0208 5757722
[email protected]

About the Property

  • End of Terrace House
  • Own Drive to Garage
  • 3 Bedrooms
  • 2 Receptions Rooms
  • Double Glazed Windows
  • Gas Central Heating
  • Walking Distance of Greenford Broadway
  • Walking Distance of Transport Links
  • No Upper Chain

Property Photos

Property Details

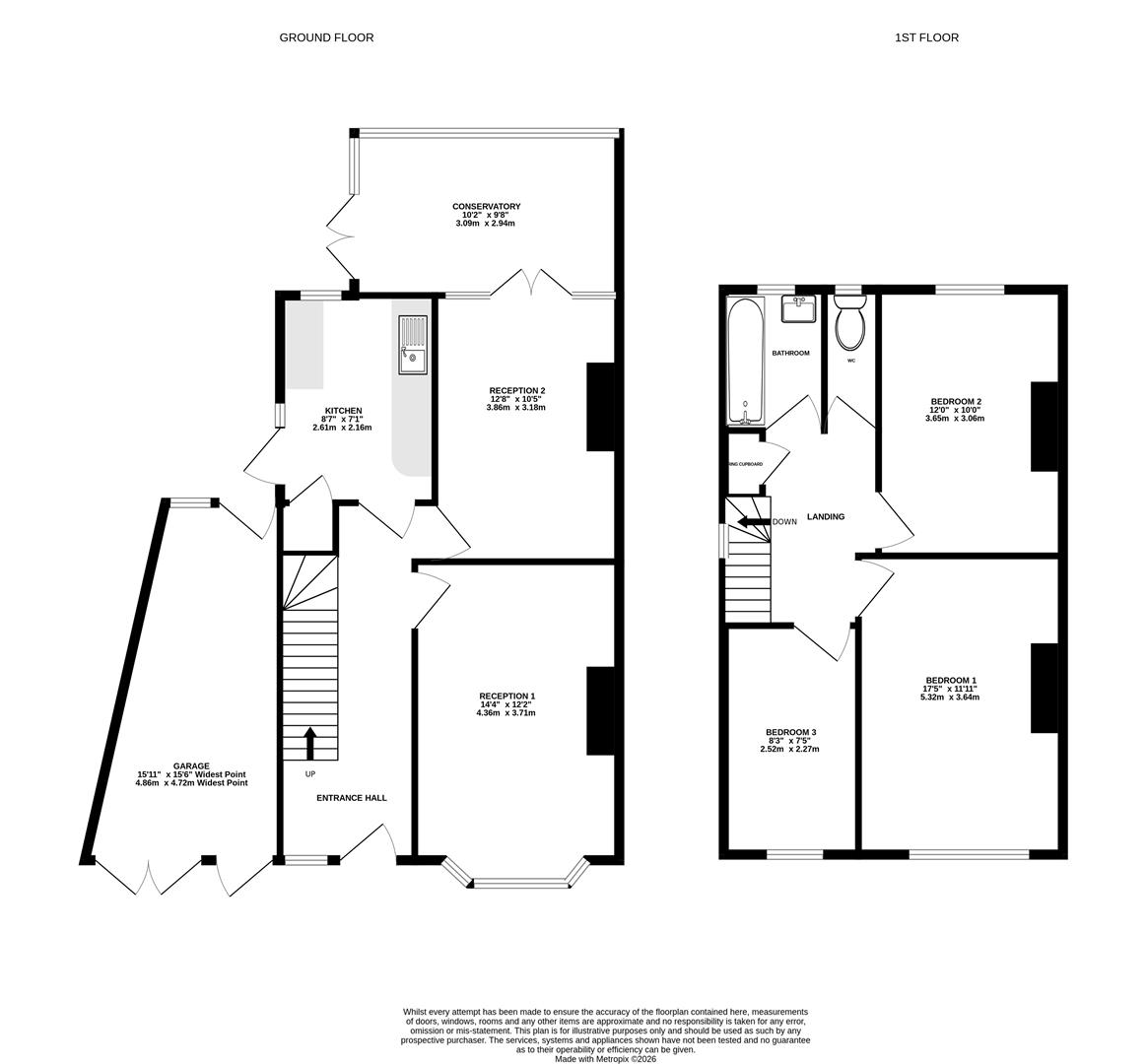
Covered Entrance

Front door to

Entrance Hall

Stairs to first floor, radiator, doors to

Reception 1

4.36 x 2.71 (14'3" x 8'10")
Double glazed window to front, radiator, power points

Reception 2

3.86 x 3.18 (12'7" x 10'5")
radiator, double doors to

Conservatory

3.09 x 2.94 (10'1" x 9'7")
Windows and double doors to rear garden

Kitchen

2.61 x 2.16 (8'6" x 7'1")
Eye and base level units, single drainer sink unit, space and plumbing for washing machine, double glazed windows to rear and side, door to side providing access to rear garden and garage

Stairs to First Floor

Built in Airing Cupboard, doors to

Bedroom 1

3.79 x 3.12 (12'5" x 10'2")
Double glazed window to front, radiator, power points

Bedroom 2

3.65 x 3.06 (11'11" x 10'0")
Double glazed window to rear, radiator, power points

Bedroom 3

2.52 x 2.27 (8'3" x 7'5")
Double glazed window to front, radiator, power points

Bathroom

Panel enclosed bath, wash hand basin, double glazed window to rear

Separate WC

Low level wc, double glazed window to rear

Outside

Front

Enclosed garden, Gates to

Own Drive to Garage

4.86 x 4.72 (widest point) (15'11" x 15'5" (widest
Double Doors, light and lower, door to rear providing access to rear

Rear

Paved patio leading to lawned area, hardstanding for shed enclosed by fencing

Floorplans

Energy Performance Certificates

Location Map

Open In Google Maps

Enquire / Book Viewing

Contacting Greenford
55 The Broadway
Greenford
Middlesex
UB6 9PN
Tel: 0208 5757722
[email protected]
  • arrange a viewing
  • arrange a valuation
  • be sent further property details
  • register for property updates

Contact Details: