SSTC 3 Bed House - End Terrace 

Mornington Road, Greenford £550,000

Property Features

Location:
Mornington Road, Greenford, UB6 9HW
Reception Rooms: 2
Bedrooms: 3
Bathrooms: 1

Contact Agent

Greenford
55 The Broadway
Greenford
Middlesex
UB6 9PN
Tel: 0208 5757722
[email protected]

About the Property

  • End Terraced House
  • 3 Bedrooms
  • 2 Reception Rooms
  • Double Glazed
  • Gas Central Heating
  • Double Garage

Property Photos

Property Details

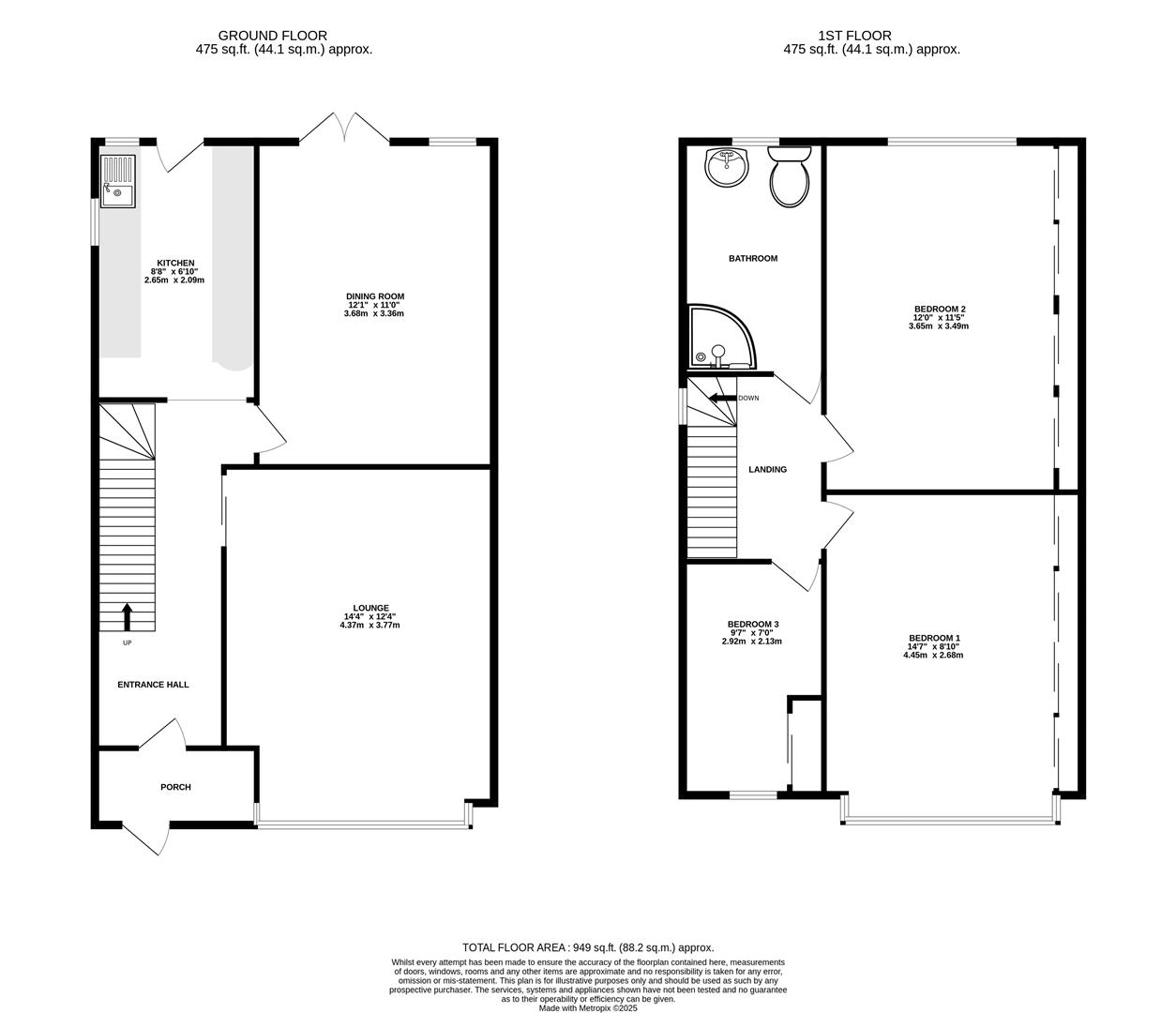
Porch

Double glazed door and windows, front door to

Entrance Hall

Stairs to first floor, doors to

Lounge

4.37 x 3.77 (14'4" x 12'4")
Double glazed bay window to front, radiator, power points

Dining Room

3.68 x 3.36 (12'0" x 11'0")
Double glazed double doors and window to rear garden, serving hatch

Kitchen

2.65 x 2.09 (8'8" x 6'10")
Eye and base level storage units, work surfaces, single drainer sink, space and plumbing for washing machine, gas cooker point, tiled walls, double glazed windows to side and rea, double glazed door to rear garden

Stairs to First Floor

doors to

Bedroom 1

4.45m x 2.67m (to wardrobe) (14'7" x 8'9" (to ward
Double glazed bay window to front, built in wardrobe with sliding doors, radiator, power points

Bedroom 2

3.65 x 3.49 (11'11" x 11'5")
Double glazed window to rear, built in wardrobes, radiator, power points

Bedroom 3

2.92 x 2.13 (9'6" x 6'11")
Double glazed window to front, built in wardrobe, radiator, power points

Shower Room

Fully tiled shower cubicle, mains shower, wash hand basin, low level wc, double glazed window to rear

Outside

Front

Full enclosed garden area, shared drive to side leading to

Rear

Mainly laid to lawn with variety of flower and shrubs, pathway leading to

Double Garage

7.70 x 5.20 (25'3" x 17'0")
Uo and over door, light and power

Floorplans

Energy Performance Certificates

Location Map

Open In Google Maps

Enquire / Book Viewing

Contacting Greenford
55 The Broadway
Greenford
Middlesex
UB6 9PN
Tel: 0208 5757722
[email protected]
  • arrange a viewing
  • arrange a valuation
  • be sent further property details
  • register for property updates

Contact Details: