For Sale 2 Bed Apartment 

Links View, Greenford Road, Greenford £280,000

Property Features

Location:
Links View, Greenford Road, Greenford, London, UB6 9AT
Reception Rooms: 1
Bedrooms: 2
Bathrooms: 1

Contact Agent

Greenford
55 The Broadway
Greenford
Middlesex
UB6 9PN
Tel: 0208 5757722
[email protected]

About the Property

  • 142 years remaining on the lease
  • £820 service charge per 6 months
  • 2 bedroom first floor flat
  • Double glazed
  • Central heated
  • Modern bathroom
  • Private off street parking

Property Photos

Property Details

Stairs to 1st floor, front door to

Entrance Hallway

Radiator, built in cupboard, doors to

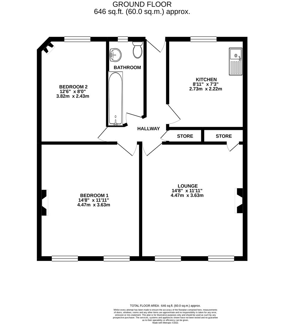
Kitchen

2.73 x 2.22 (8'11" x 7'3")
Eye and base level storage units, single drainer stainless steel sink unit with mixer taps, space and plumbing for washing machine, space for gas hob with overhead extractor hood, power points, half tiled walls, double glazed window to front.

Lounge

4.47 x 3.63 (14'7" x 11'10")
Double glazed windows to front, radiator, power points, open fireplace, built in storage cupboard.

Bedroom 1

4.47 x 3.63 (14'7" x 11'10")
Double glaze windows to front, radiator, power points

Bedroom 2

3.82 x 2.43 (12'6" x 7'11")
Double glazed window to front, radiator, power points

Bathroom

2.77 x 1.46 (9'1" x 4'9")
Tile enclosed bath with mixer taps and shower attachment, vanity unit wash hand basin, low-level WC, fully tiled walls, double glazed window to front, chrome heated towel rail

Outside

Communal Parking, private garden

Floorplans

Energy Performance Certificates

Location Map

Open In Google Maps

Enquire / Book Viewing

Contacting Greenford
55 The Broadway
Greenford
Middlesex
UB6 9PN
Tel: 0208 5757722
[email protected]
  • arrange a viewing
  • arrange a valuation
  • be sent further property details
  • register for property updates

Contact Details: