SSTC 3 Bed House - End Terrace 

Elton Avenue, Greenford £550,000

Property Features

Location:
Elton Avenue, Greenford, UB6 0PP
Reception Rooms: 2
Bedrooms: 3
Bathrooms: 1

Contact Agent

Greenford
55 The Broadway
Greenford
Middlesex
UB6 9PN
Tel: 0208 5757722
[email protected]

About the Property

  • End Terraced House
  • 3 Bedrooms
  • Double Glazed
  • 2 Reception Rooms
  • Popular Residential Area
  • Walking Distance of Local Shops and Schools
  • Gas Central Heating
  • Shared Drive to Garage
  • No Chain

Property Photos

Property Details

Covered Entrance

Double glazed front door to

Entrance Hall

Stairs to First Floor, doors to

Lounge

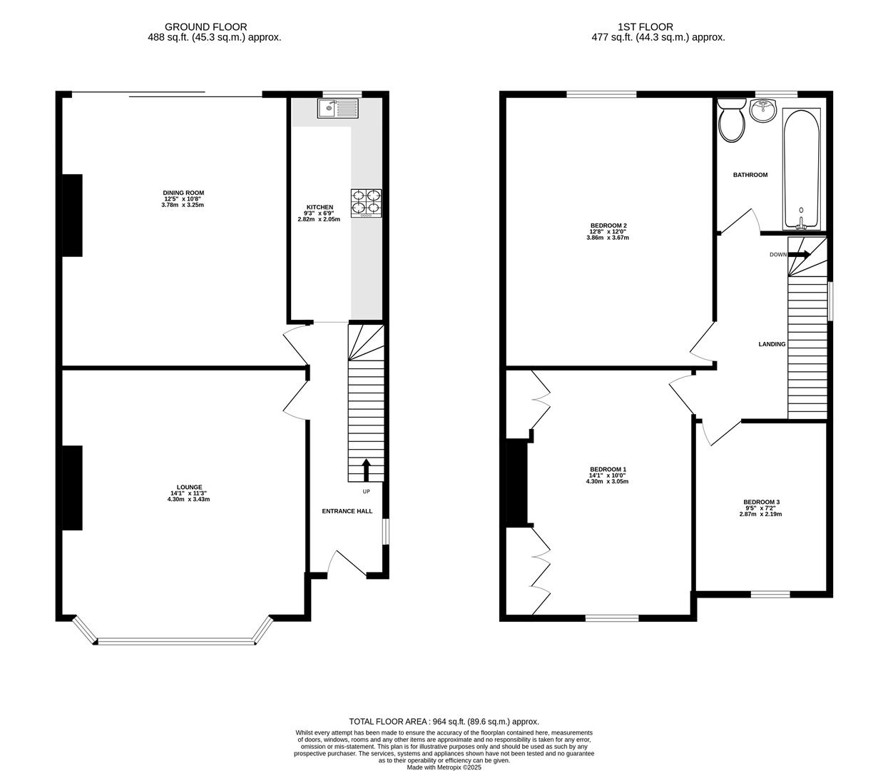
4.30 x 3.43 (14'1" x 11'3")
Double glazed bay window to front, fireplace, radiator, power points

Dining Room

3.25 x 3.78 (10'7" x 12'4")
Double glazed sliding door to rear garden, radiator, power points

Kitchen

2.82 x 2.05 (9'3" x 6'8")
Eye and base level unit, work surfaces, single drainer sink unit, built in electric oven, 4 ring gas hob inset into worksurface, double glazed window to rear

Stairs to First Floor

Doors to

Bedroom 1

4.30 x 3.05 (14'1" x 10'0")
Double glazed window to front, fitted wardrobes, radiator, power points

Bedroom 2

3.86 x 3.67 (12'7" x 12'0")
Double glazed window to rear, radiator, power points

Bedroom 3

2.87 x 2.19 (9'4" x 7'2")
Double glazed window to front, radiator, power points

Bathroom

Panel enclosed bath with shower screen, wall mounted shower controls, wash nah basin, low level wc, double glazed window to rear, tiled walls

Outside

Front

Enclosed gardens area, shared drive to side leading to

Garage

With up and over door

Rear

Paved patio leading to lawned area, enclosed by fencing

Floorplans

Energy Performance Certificates

Location Map

Open In Google Maps

Enquire / Book Viewing

Contacting Greenford
55 The Broadway
Greenford
Middlesex
UB6 9PN
Tel: 0208 5757722
[email protected]
  • arrange a viewing
  • arrange a valuation
  • be sent further property details
  • register for property updates

Contact Details: