For Sale 3 Bed House - Mid Terrace 

Barmouth Avenue, Perivale, Greenford £575,000

Property Features

Location:
Barmouth Avenue, Perivale, Greenford, UB6 8JU
Reception Rooms: 2
Bedrooms: 3
Bathrooms: 2

Contact Agent

Greenford
55 The Broadway
Greenford
Middlesex
UB6 9PN
Tel: 0208 5757722
[email protected]

About the Property

  • 3 bedrooms
  • 2 bathrooms
  • Rear extension
  • Outbuilding
  • Modern
  • Double glazed
  • Central heated
  • Rear garden

Property Photos

Property Details

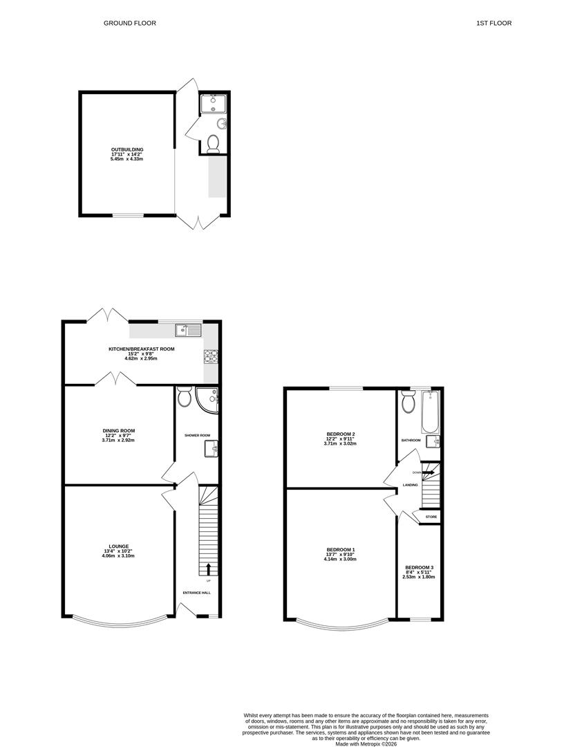
Covered Entrance

Front door to

Entrance Hall

Stairs to first floor, double glazed window to front, laminate wood floors, doors to

Lounge

4.06 x 3.10 (13'3" x 10'2")
Wood laminate floors, power points, double glazed bay windows to front, inset spotlights, radiator

Dining Area

3.71 x 2.92 (12'2" x 9'6")
Wood laminate floors, power points, radiator, inset spotlights, double doors to

Kitchen / Breakfast Room

4.62 x 2.95 (15'1" x 9'8")
Wood laminate floors, inset spotlights, eye and base level storage units, four ring gas hob with over head extractor hood, integrated double oven and grill, single drainer stainless steel sink unit with mixer taps, power points, double glazed windows to rear, double glazed double doors to rear

Shower Room

Full tiled walls and floors, chrome heated towel rail, inset spotlights, wash hand basin with mixer taps, shower cubical with shower attachment, low level WC

Outbuilding

5.45 x 4.33 (17'10" x 14'2")
Door to rear, stand up shower room with full tiled walls, shower cubical with shower attachment, low level WC, wash hand basin with mixer taps. Inset spotlights, eye and base level storage units, power points, wood laminate floors, inset spotlights

Stairs to first floor

Bedroom 1

4.14 x 3.0 (13'6" x 9'10")
Double glazed bay windows to front, power points, inset spotlights, fitted wardrobes, radiator

Bedroom 2

3.71 x 3.02 (12'2" x 9'10")
Double glazed windows to rear, power points, inset spotlights, radiator, fitted wardrobes

Bedroom 3

2.53 x 1.80 (8'3" x 5'10")
Double glazed windows to front, power points, radiator

Bathroom

Fully tiled walls and floors, low level WC, vanity wash hand basin with mixer taps, panel enclosed bath, chrome heated towel rail, inset spotlights

Outside

Front

Rear

Paved flooring, law area with paved path leading to outbuilding

Floorplans

Energy Performance Certificates

Location Map

Open In Google Maps

Enquire / Book Viewing

Contacting Greenford
55 The Broadway
Greenford
Middlesex
UB6 9PN
Tel: 0208 5757722
[email protected]
  • arrange a viewing
  • arrange a valuation
  • be sent further property details
  • register for property updates

Contact Details: